Rénovation C -44740 Batz sur Mer

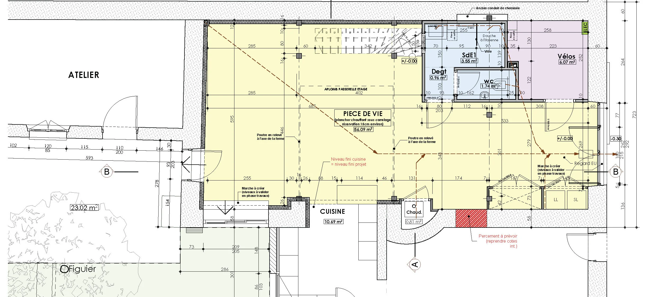
Il s’agit d’un chantier de rénovation. Le bâtiment, une ancienne habitation ayant servi de hangar à sel au début du XXème siècle, est construit en pierre et le sol est en terre battue. La toiture en tuile est visible de l’intérieur. Celle-ci est supportée par 3 fermes à double entrait. L’objectif est de créer une extension dans l’intérieur du volume pour la maison déjà existante et utilisée à côté. Cette partie de bâtiment accueillera la cuisine ouverte (extension au sens propre du projet puisque elle devient la pièce-lien avec le projet), 3 chambres, 2 salles de bains et un local vélo, en plus d’un espace ouvert tout hauteur. La problématique initiale résidait dans l’absence d’ouvertures en toiture, un manque physique de lumière et d’ensoleillement.

012.jpg
 
 
AMBIANCES_Page_3.jpg
AMBIANCES_Page_6.jpg